By feeling limited through the determined raster, we started searching ways out of constraints. The depth opened new possibilities, there has been no adjustment.


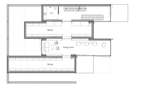
We kept the two given dimensions, we developed cubes - related to those alignments - and broke out in depth. We emphasised the deepness, we pushed and pulled our boxes in this direction til no one was positioned like the other around. The outcome: more space and different qualities of rooms. Currently some zones are more private, others are more public, some contain windows, others do not. Water and land side now communicate with each other. The outbreak on one side involves a break-in on the other. While the canal side is light, generous and open, the reversed is created like a backside: narrow, cloudy and dark.

Second floor